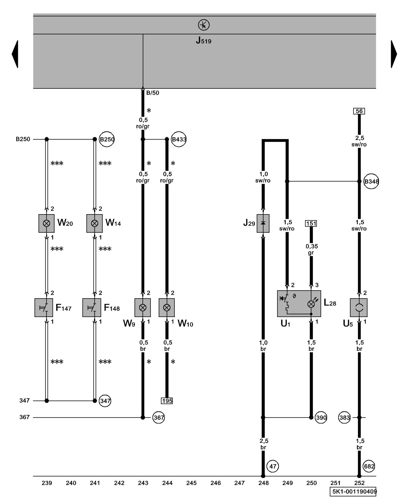
Diagram 1/19 (Tracks 239-252)
IMPORTANT NOTE:
This manufacturer uses "Track" style wiring diagrams.
For information on how to use these diagrams effectively, please refer to Diagram Information and Instructions. Diagram Information and Instructions
Make-Up Mirror Light Contact Switch, Cigarette Lighter, 12 V Socket, Glove Compartment Light

ws = white
sw = black
ro = red
br = brown
gn = green
bl = blue
gr = grey
li = lilac
ge = yellow
or = orange
rs = pink
F147 - Driver's Make-Up Mirror Light Contact Switch
F148 - Front Passenger's Make-Up Mirror Light Contact Switch
J29 - Blocking Diode
J519 - Vehicle Electrical System Control Module Control modules in front part of vehicle - Overview of Control Modules
L28 - Cigarette Lighter Illumination
T3 - 3-Pin Connector
U1 - Cigarette Lighter
U5 - 12 V Socket, luggage compartment, right
W9 - Left Footwell Light
W10 - Right Footwell Light
W14 - Front Passenger's Illuminated Make-up Mirror
W20 - Driver's Illuminated Make-up Mirror Light
(47) - Ground Connection (in front right footwell) Overview Of Ground Connections in Interior
(347) - Ground Connection (in roof wiring harness)
(367) - Ground Connection 2 (in main wiring harness)
(383) - Ground Connection 18 (in main wiring harness)
(390) - Ground Connection 25 (in main wiring harness)
(682) - Ground Connection 2 (in right rear side panel) Overview Of Ground Connections in Luggage Compartment
(B250) - Plus Connection (in roof wiring harness)
(B348) - Connection 1 (75a) (in main wiring harness)
(B433) - Footwell illumination Connection (in main wiring harness)
* - Only models with Glove Compartment Light
(***) - Only models with illuminated Make-up mirror
- Foil Conductor
Previous Diagram 1/18 (Tracks 225-238)
Next Diagram 1/20 (Tracks 253-266)