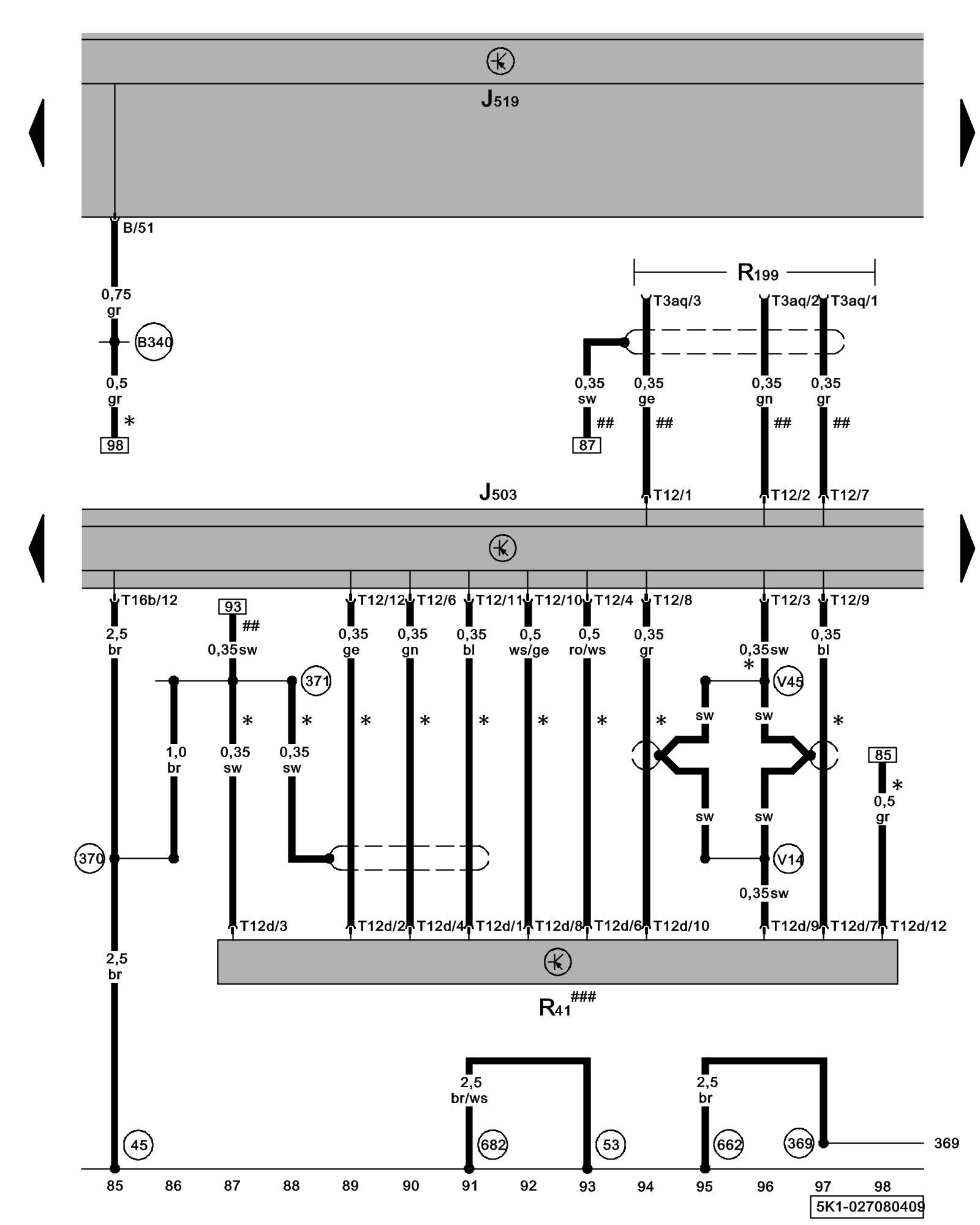
Diagram 27/8 (Tracks 85-98)
IMPORTANT NOTE:
This manufacturer uses "Track" style wiring diagrams.
For information on how to use these diagrams effectively, please refer to Diagram Information and Instructions. Diagram Information and Instructions
Radio/Navigation Display Control Module, CD Changer, External Audio Source Connector

ws = white
sw = black
ro = red
br = brown
gn = green
bl = blue
gr = grey
li = lilac
ge = yellow
or = orange
rs = pink
J519 - Vehicle Electrical System Control Module Control modules in front part of vehicle - Overview of Control Modules
J503 - Radio/Navigation Display Control Module
Locations
R41 - CD Changer
Locations
R199 - External Audio Source Connector
Locations
T3aq - 3-Pin Connector, in glove compartment
T12 - 12-Pin Connector
T12d - 12-Pin Connector
T16b - 16-Pin Connector
(45) - Ground Connection (behind instrument panel, center)
(53) - Ground Connection (in rear lid, right) Overview Of Ground Connections in Luggage Compartment
(369) - Ground Connection 4 (in main wiring harness)
(370) - Ground Connection 5 (in main wiring harness)
(371) - Ground Connection 6 (in main wiring harness)
(662) - Ground Connection (on left rear side panel)
(682) - Ground Connection 2 (in right rear side panel) Overview Of Ground Connections in Luggage Compartment
(B340) - Connection 1 (58d) (in main wiring harness)
(V14) - Connection (shielding) (in CD-changer wiring harness)
(V45) - Connection 2 (shielding)(in CD changer wiring harness)
* - Only models with CD changer/ CD changer preparation
## - Only external audio connector in glove compartment
### - Components not available on system preparation
Previous Diagram 27/7 (Tracks 71-84)
Next Diagram 27/9 (Tracks 99-112)