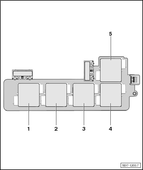
Position of Relays on Upper Vehicle Electrical System Control Module,from November 2011
Relay
Position of Relays on Upper Vehicle Electrical System Control Module,from November 2011

1 - Terminal 15 power supply relay -J329- (645)
• Fuse location 1
2 - Load reduction relay -J59- (644)
• Fuse location 2
• Right hand drive vehicles terminal 50 power supply relay -J682- 1(645), Starter relay 1 -J906- 2(645)
• Fuse location 5
• 1 Models without stop/start system
• 2 Models with stop/start system
3 - Dual tone horn relay -J4- (646)
• Connection 3/A
3 - Headlamp washer system relay -J39- (646)
• Connection 3/B
4 - Rear window defogger relay -J9- (645)
• Fuse location 4
5 - Terminal 50 power supply relay -J682- 1(645), starter relay 1 -J906- 2(645)
• Fuse location 5
• 1 Models without stop/start system
• 2 Models with stop/start system
• RHD vehicles load reduction relay -J59- (644)
• Fuse location 2