Operation CHARM: Car repair manuals for everyone.

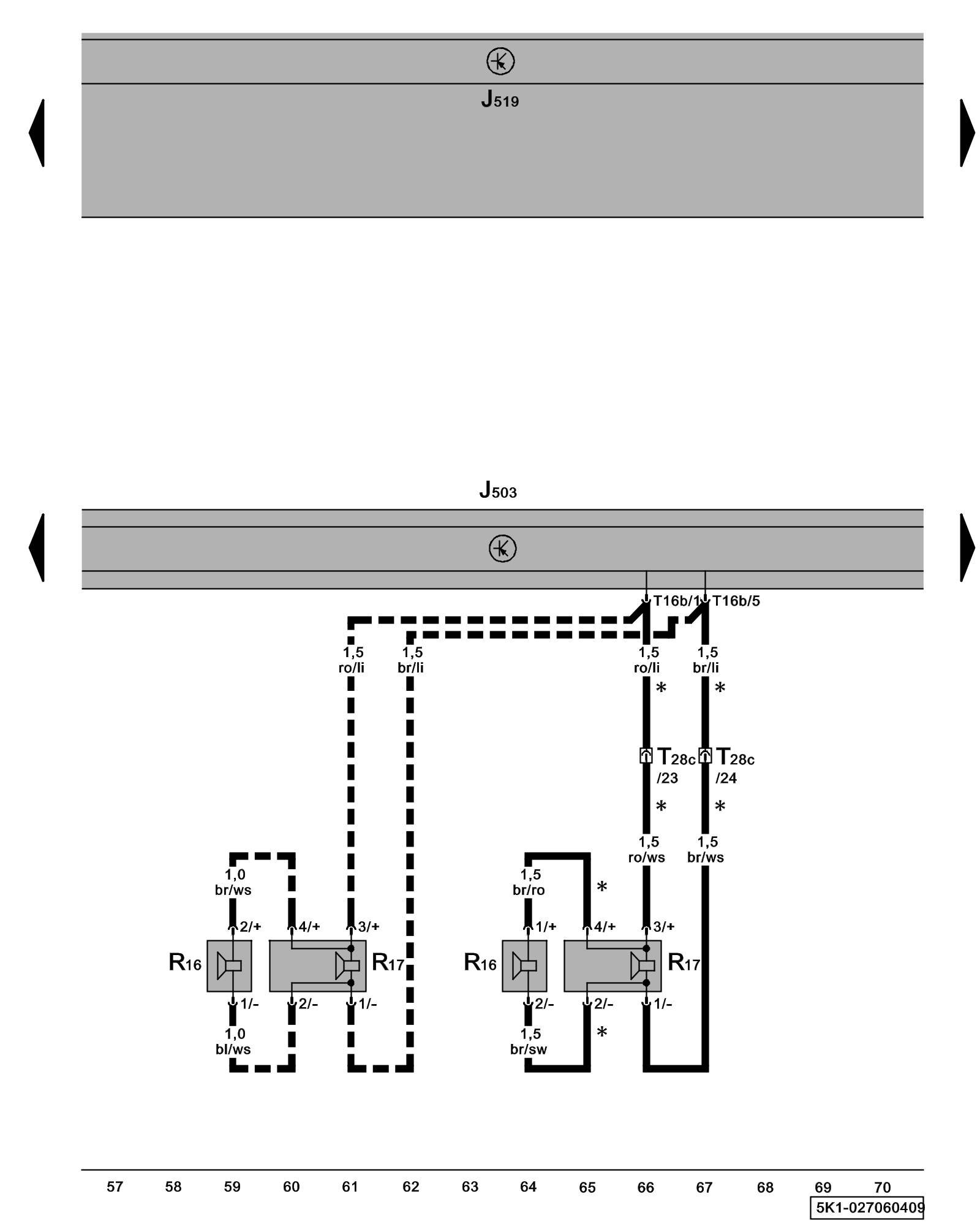
Diagram 27/6 (Tracks 57-70)






IMPORTANT NOTE:
This manufacturer uses "Track" style wiring diagrams.
For information on how to use these diagrams effectively, please refer to Diagram Information and Instructions. Diagram Information and Instructions


Radio/Navigation Display Control Module, Right Rear Speaker





ws = white
sw = black
ro = red
br = brown
gn = green
bl = blue
gr = grey
li = lilac
ge = yellow
or = orange
rs = pink

J503 - Radio/Navigation Display Control Module
Locations

J519 - Vehicle Electrical System Control Module Control modules in front part of vehicle - Overview of Control Modules

J533 - Data Bus On Board Diagnostic Interface Control modules in front part of vehicle - Overview of Control Modules

R - Radio
Locations

R16 - Right Rear Treble Speaker
Locations

R17 - Right Rear Bass Speaker
Locations

T16b - 16-Pin Connector

T28c - 28-Pin Connector, connector station B-pillar, right Overview of connector stations and connectors

* - Only 4-door models with rear speaker

--- - Only 2-door models with rear speaker

Previous Diagram 27/5 (Tracks 43-56)

Next Diagram 27/7 (Tracks 71-84)