Operation CHARM: Car repair manuals for everyone.

Diagram 12/2 (Tracks 1-14)






IMPORTANT NOTE:
This manufacturer uses "Track" style wiring diagrams.
For information on how to use these diagrams effectively, please refer to Diagram Information and Instructions. Diagram Information and Instructions


Battery





ws = white
sw = black
ro = red
br = brown
gn = green
bl = blue
gr = grey
li = lilac
ge = yellow
or = orange
rs = pink

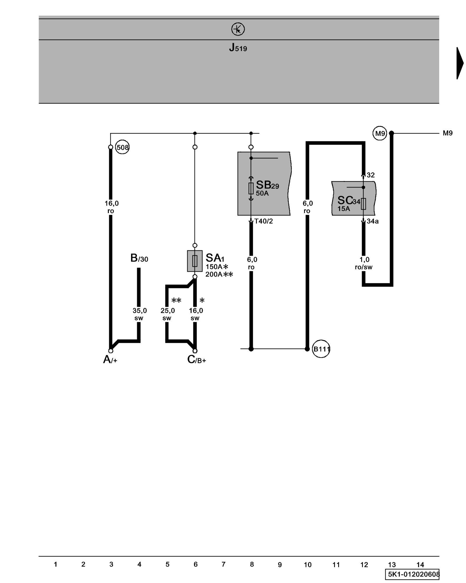
A - Battery

B - Starter

C - Generator (GEN)

J519 - Vehicle Electrical System Control Module Control modules in front part of vehicle - Overview of Control Modules

SA1 - Fuse 1 (on fuse panel) Battery Fuse overview (SA), (SB), (SC)

SB29 - Fuse 29 (on fuse panel B) Fuse overview (SA), (SB), (SC)

SC34 - Fuse 34 (on fuse panel D) Fuse overview (SA), (SB), (SC)

T40 - 40-Pin Connector

(508) - Threaded Connection terminal 30 (on electronics box)

(B111) - Plus Connection 1 (30a) (in interior wiring harness)

(M9) - Connection (in seat adjustment wiring harness)

* - Models with 90 A/ 120 A generator

** - Models with 140 A generator

Next Diagram 12/3 (Tracks 15-28)